Описание
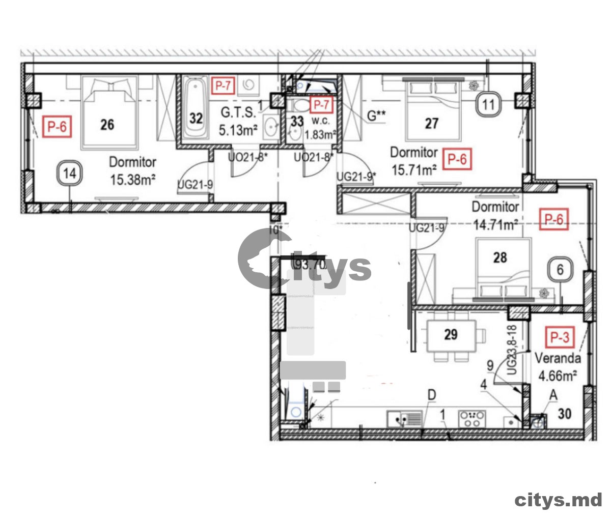
Apartament 3camere cu living Etajul 5 din 10 Podele calde pe toată suprafața apartamentului ! Cazan pe condens Vaillant Geamuri panoramice în 3 sticle Clapă inteligentă cu senzori pentru scurgere de apă Interfon inteligent apel video și prin telefon și multe alte facilități Transă 1 blocul1 bloc cu 10 etaje finisat 95% Darea în exploatare vara 2026 Apartamentele sunt realizate cu materiale durabile și finisaje de înaltă calitate!



