Descriere
Предлагается к покупке
Caracteristici
Tipul ofertei
Vînd
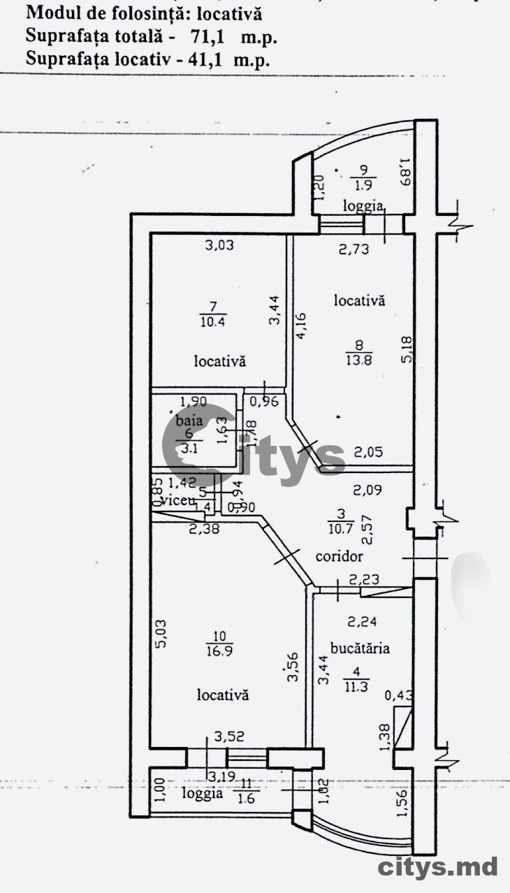
Numărul de camere
Apartament cu 3 camere
Fond locativ
Bloc nou
Suprafață totală
71 m²
Starea apartamentului
La gri
Planificare
Individuală
Nivelul
1
Număr de nivele
5
Balcon
2
Bloc sanitar
2
Adresa
str. Constantin Vârnav
Număr de telefon
+37360701155
Autor
Ilia. T
Interfon
Apartament cu 3 camere, Telecentru 71m², str. Constantin Vârnav
ID: 7135
102,900 €
791 €/luna prin credit ipotecar
Share
